
Informationen
Baugebiet
- Bergkamen
Baugebiet: Jahnstrasse

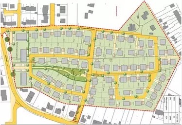
An der Hermann-Stehr-Straße/Jahnstraße in Bergkamen hat die beta Bauland Entwicklungsgesellschaft ein rund 50.000 Quadratmeter großes Grundstück erworben. Die Infrastruktur in direkter Nachbarschaft des Planungsgebietes ist hervorragend: In fußläufiger Entfernung befinden sich sowohl Einrichtungen zur Nahversorgung wie auch Freizeit- und Naherholungsgelände. Mehrere Kindertagesstätten und die Realschule Oberaden sind in kürzester Zeit erreichbar.
Der Rat der Stadt Bergkamen hat den Aufstellungsbeschluss für den Bebauungsplan Ende September 2020 gefasst.
Pressebericht zum Download





